![]() |
![]() |
![]() |
![]() |
![]() |
![]() |
![]() |
![]() |
![]() |
![]() |
BILL MAY A R C H I T E C T |
|||||||||
Village Center Houston |
|||||||||
Home |
|||||||||
Back to Projects |
![]() |
||||||||
Next |
|||||||||
![]() |
|||||||||
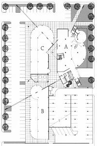
This adaptive re-use project was to have incorporated two banks which had moved to other locations and subsequently fell victim to the real estate crash of the eighties. Sadly, this project suffered the same fate and plans were never implemented |
|||||||||
![]() |
|||||||||
Next |
|||||||||
Bill May Architect 5925 Kirby, suite 220, Houston, TX 77005 713-665-5656 bmay8@sbcglobal.net |