| BILL MAY A R C H I T E C T |
|||||||||||||||
| Reiter Residence The Warwick Towers |
|||||||||||||||
| Home |
|||||||||||||||
| Back to Projects |
![]() |
||||||||||||||
| Next |
|||||||||||||||
![]() |
|||||||||||||||
| Dining Room |
|||||||||||||||
| This traditional high-rise residence was designed around the fine 18th century antiques and reproductions collected by the owners. The owner, an accomplished woodworker, built most of the reproductions. The design was intended, not to mimic 18th century details, but to serve the programmatic needs of the owners while providing an appropriate background for the furniture, rugs and quilts. |
|||||||||||||||
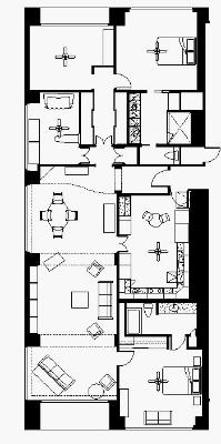
| Plan 11A |
|||||||||||||||
| Living Room |
|||||||||||||||
| Building columns were used effectively along with drywall "beams" to create a sense of separation of spaces within the open living area. A beam at the end of the dining room takes the form of a piano curve to nest atop the entry to the residence. Fine custom cherry millwork in the living room and kitchen in extends the theme of 18th century craftsmanship. |
|||||||||||||||
![]() |
|||||||||||||||
| Kitchen |
|||||||||||||||
| Next |
|||||||||||||||
| Bill May Architect 5925 Kirby, suite 220, Houston, TX 77005 713-665-5656 bmay8@sbcglobal.net |
|||||||||||||||
