| BILL MAY A R C H I T E C T |
|||||||||||||
| Woehler Residence Bayou Bend |
|||||||||||||
| Home |
|||||||||||||
| Back to Projects |
|||||||||||||
![]() |
|||||||||||||
| Next |
|||||||||||||
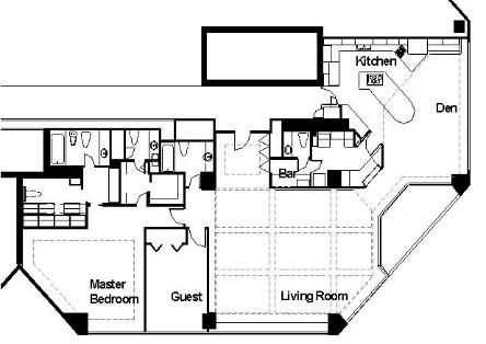
| Living room |
|||||||||||||
| This major remodeling created large, connecting formal and casual living spaces out of what had been a series of small rooms. The building’s flat slab structural system with no ceiling made lighting the large formal living room a challenge. Bill May developed a coffered ceiling system with small adjustable accent lights in the beams with an indirect cove lighting system providing soft ambient light. In the casual living area, the architect combined the kitchen, den and home office with an expanded island as a focal point for entertaining. |
|||||||||||||
![]() |
|||||||||||||
| Kitchen/den |
|||||||||||||
![]() |
|||||||||||||
| Next |
|||||||||||||
| Bill May Architect 5925 Kirby, suite 220, Houston, TX 77005 713-665-5656 bmay8@sbcglobal.net |
|||||||||||||