BILL MAY
A R C H I T E C T
Gray Falls Office Building
Houston
Home
Back to Projects
Next
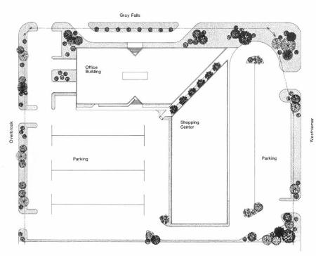
The Gray Falls project consists of a four story office
building and a shopping center on the prime
Westheimer frontage.   The plan took the form of two
trapezoids with 45 degree ends which merged creating
a pedestrian walkway between the two buildings.  

In that the back of the center was highly visible from the
office building, great care was taken with respect to
electrical service and other services to make them
invisible to the neighbors.  
Next
Bill May Architect     3701 Rice Blvd, Houston, TX 77005    713-666-5669     bill@billmayarchitect.com