BILL MAY
A R C H I T E C T
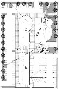
Village Center
Houston
Home
Back to Projects
Next


This adaptive re-use project was to have incorporated
two banks which had moved to other locations and
subsequently fell victim to the real estate crash of the
eighties.  Sadly, this project suffered the same fate and
plans were never implemented
Next
Bill May Architect     3701 Rice Blvd, Houston, TX 77005    713-666-5669     bill@billmayarchitect.com