![]() |
![]() |
![]() |
![]() |
![]() |
![]() |
![]() |
![]() |
![]() |
BILL MAY A R C H I T E C T |
||||||||
Gray Falls Office Building Houston |
||||||||
Home |
||||||||
Back to Projects |
![]() |
|||||||
Next |
||||||||
![]() |
||||||||
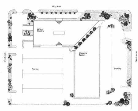
The Gray Falls project consists of a four story office building and a shopping center on the prime Westheimer frontage. The plan took the form of two trapezoids with 45 degree ends which merged creating a pedestrian walkway between the two buildings. In that the back of the center was highly visible from the office building, great care was taken with respect to electrical service and other services to make them invisible to the neighbors. |
||||||||
Next |
||||||||
Bill May Architect 5925 Kirby, suite 220, Houston, TX 77005 713-665-5656 bmay8@sbcglobal.net |